-
- Tổng tiền thanh toán:
Danh mục hãng
Trụ sở chính:
Chi nhánh:
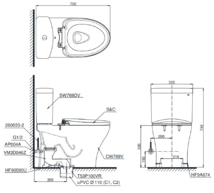
Kỹ thuật
Tính năng
Mô tả sản phẩm
Bàn cầu hai khối, nắp đóng êm kèm vòi rửa nước lạnh TCW07S CS769DRE2 mang tiện ích cho phòng tắm của bạn. Ngoài thiết kế sang trọng, đẹp mắt sản phẩm còn mang lại nhiều tính năng giúp tối ưu hóa khả năng vệ sinh và tiện lợi khi sử dụng.
Bàn cầu hai khối CS769DRE2 có kích thước 700D x 395W x 747H (mm), sử dụng men sứ chống dính và chống bám bẩn CEFIONTECT giúp kháng khuẩn, ngăn chất bẩn và mảng bám kết hợp với hệ thống xả xoáy TORNADO mạnh mẽ giúp tránh tắc nghẽn. Ngoài ra, bàn cầu CS769DRE2 còn được tích hợp vòi nước rửa lạnh với chức năng rửa sau, mang lại trải nghiệm vô cùng thoải mái và tiện nghi cho người dùng.
Bàn cầu hai khối, nắp đóng êm kèm vòi rửa nước lạnh TCW07S CS769DRE2 được trang bị nhiều công nghệ nổi bật như:
2.1 Hệ thống xả xoáy TORNADO - 360 độ mạnh mẽ.
Hệ thống xả xoáy Tornado là một công nghệ tiên tiến trong lĩnh vực vệ sinh, với những đặc tính nổi bật bao gồm siêu mạnh, siêu êm, và tiết kiệm nước. Công nghệ này tạo ra một lực xoáy mạnh mẽ trong bàn cầu khi xả, giúp loại bỏ chất cặn và bã nhờn một cách hiệu quả, đồng thời đảm bảo hiệu suất xả tối ưu. Hiệu suất làm sạch cao không chỉ giúp bảo dưỡng bồn cầu sạch sẽ mà còn giảm nhu cầu sử dụng nước trong quá trình sử dụng, từ đó tiết kiệm nước đáng kể.
Ngoài ra, hệ thống xả xoáy Tornado còn nổi tiếng với độ ồn thấp, tạo ra trải nghiệm xả êm dịu và không làm phiền bạn trong quá trình sử dụng. Đây là một giải pháp hiện đại và tiện ích cho không gian vệ sinh của bạn, mang lại sự thoải mái và hiệu quả.
2.2 Lớp men sứ CEFIONTECT - Chống bám dính, bám bẩn hiệu quả
Men sứ CEFIONTECT là một công nghệ tiên tiến độc quyền được TOTO áp dụng trong việc sản xuất các sản phẩm vệ sinh, đặc biệt là bàn cầu. Không chỉ tạo nên bề mặt men mịn và bóng, CEFIONTECT còn sở hữu khả năng chống bám bẩn vượt trội.
Men sứ CEFIONTECT giữ cho bề mặt của bồn cầu luôn duy trì sự sạch sẽ và an toàn vệ sinh.
2.3 Thiết kế vành kín RIMLESS - Ngăn chặn nơi trú ngụ của vi khuẩn và nấm mốc
TOTO đã ứng dụng công nghệ RIMLESS với thiết kế không vành, không khe khuất. Công nghệ này không chỉ loại bỏ triệt để nơi ẩn náu của vi khuẩn và nấm mốc mà còn rất dễ vệ sinh.
2.4 Hệ thống WATER SAVING SYSTEM - Tiết kiệm nước, bảo vệ môi trường.
Khi sử dụng bàn cầu CS769DRE2, bạn có thể xả nước linh hoạt với hai chế độ xả đại và xả tiểu 4.5L/3L sẽ tiết kiệm đáng kể lượng nước sinh hoạt.
Chi tiết thông số kỹ thuật của bàn cầu hai khối, nắp đóng êm kèm vòi rửa nước lạnh TCW07S CS769DRE2:
