-
- Tổng tiền thanh toán:
Danh mục hãng
Trụ sở chính:
Chi nhánh:
Kỹ thuật
Tính năng
Mô tả sản phẩm
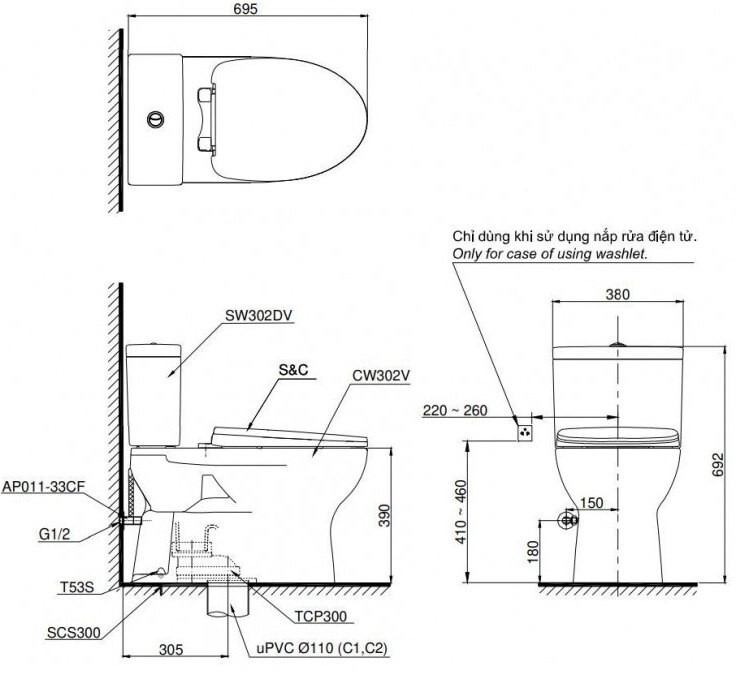
Bàn cầu hai khối CS302 kết hợp nắp rửa cơ ECO WASHER TCW07S được thiết kế theo phong cách hiện đại và cao cấp. Bàn cầu được thiết kế thân dài, với bán kính L695 x W380 x H692 (mm) (bao gồm bích nối sàn, van dừng và dây cấp) mọi phù hợp với không gian nhà vệ sinh.
Ngoài ra, bàn cầu hai khối CS302 kết hợp nắp rửa cơ ECOWASHER TCW07S được tích hợp hệ thống xả Siphon (4.8L/3L) giúp cuốn trôi mọi vết bẩn bám trên vành, lòng bồn cầu mà không hề gây ra tiếng ồn.
2.1 Hệ thống xả Siphon mạnh mẽ
So với các hệ thống cả thông thường thì hệ thống xả Siphon với tốc độ dòng chảy lớn có thể cuốn trôi các chất bẩn với 1 lần xả mà chỉ sử dụng một lượng nước rất ít. Bên cạnh đó bộ xả Siphon được trang bị công nghệ hiện hạn chế vi khuẩn tối đa và không gây tiếng ồn khó chịu cho người dùng.
2.2 Xả tiết kiệm nước 4.8/3L
Bàn cầu CS302 được áp dụng công nghệ xả thải giúp tiết kiệm nước tối đa với chế độ 4.8L cho mức xả đại và 3L cho xả tiểu. Nhờ đó, lượng nước mà bàn cầu CS302 tiêu thụ thấp hơn rất nhiều so với các dòng bàn cầu khác trên thị trường.
2.3 Kết hợp nắp rửa cơ Ecowasher
Bàn cầu hai khối CS302 kết hợp nắp rửa cơ ECO WASHER TCW07S có vòi rửa 1 chế độ. Với chế độ rửa sau vô cùng tiện lợi, thoải mái cho người sử dụng và thân thiện với môi trường.
● Kích thước: L695 x W380 x H692 (mm)
● Màu sắc: Trắng
● Hệ thống xả: Siphon
● Lượng nước xả: 4.8L/3L
● Thiết kế: Thân dài, thân bán kín

Bản vẽ bồn cầu hai khối CS302DE2