Thông tin bồn cầu TOTO CS735DT3
- Mã sản phẩm: CS735DT3#XW
- Thiết kế: Thân dài
- Loại bồn cầu: 2 khối
- Hệ thống xả: Tornado
- Loại xả: 2 nhấn
- Nắp rơi êm
- Lượng nước sử dụng: 4.8/ 3 L
- Áp lực nước sử dụng: 0.05 ~ 0.70 (Mpa)
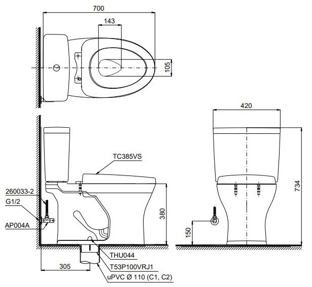
- Tâm xả: 305 (mm)
- Kích thước (DxRxC): 700 x 420 x 734 mm
- Xuất xứ: Việt Nam
- Bảo hành: 2 năm
Bồn cầu TOTO CS735DT3XW gồm có
- Thân cầu: C735
- Két nước: S735D
- Nắp bồn cầu TC385VS
Tính năng bàn cầu TOTO CS735D T3
- Bệt 735 thiết kế sang trọng
- Nắp đóng êm
- Phù hợp lắp đặt với nắp rửa điện tử WASHLET (tùy chọn)
- Bề mặt nước rộng giúp ngăn mùi hiệu quả
- Thiết kế thân kín, vành kín tiện dụng cho việc vệ sinh hàng ngày
- Công nghệ CeFiONtect giúp lòng bàn cầu siêu nhẵn, hạn chế tối đa các vết bẩn, vi khuẩn
- Công nghệ xả thẳng Tornado êm, mạnh mẽ hiệu quả
Bản vẽ kỹ thuật bồn cầu Toto nắp êm TC385VS
