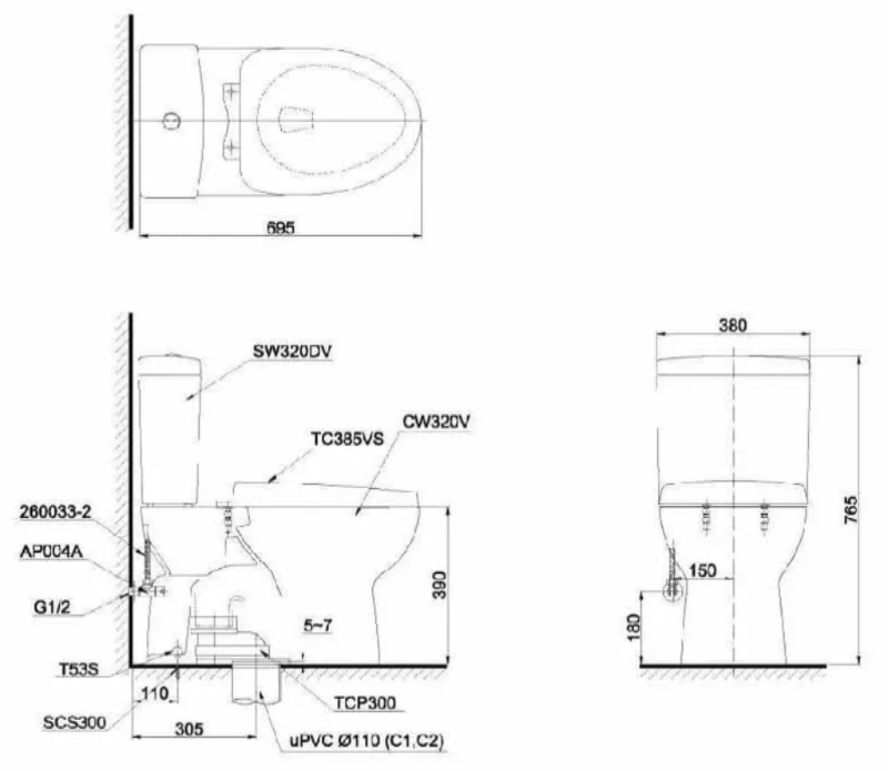
Kỹ thuật
- Kích thước: 695D x 380W x 765H mm
- Màu sắc: Trắng
- Hệ thống xả: Siphon
- Lượng nước xả: 4.8L/3L
- Thiết kế: Thân dài, thân bán kín
- Tâm xả: 305 mm
- Áp lực nước: 0.05 ~ 0.70 MPa
- Lưu ý: Bao gồm van dừng
Tính năng
- Hệ thống xả Siphon siêu mạnh, tiết kiệm nước
Mô tả bàn cầu vệ sinh hai khối CS320DRT3 với nắp rửa đóng êm TOTO
Bàn cầu TOTO CS320DRT3 được kết hợp với nắp đóng êm chất liệu cao cấp mã TC385VS thể hiện vẻ ngoài đơn giản, sang trọng cho căn phòng tắm nhà bạn. Với thiết kế sắc sảo thân kín màu trắng hình dài, giá thành phải chăng, lắp đặt đơn giản, hứa hẹn sẽ đem đến cho bạn trải nghiệm tuyệt vời mỗi khi bước chân vào khu vực phòng tắm, nhà vệ sinh.

Bồn cầu nhà vệ sinh hai khối, nắp đóng êm TC385VS
Bổ sung thông tin chi tiết về bệ toilet hai khối TOTO CS320DRT3 nắp rửa đóng êm
- Loại bồn cầu: Bồn cầu hai khối nắp đóng êm
- Công nghệ: Tiết kiệm nước,…
- Vật liệu: Sứ vệ sinh
- Loại xả: Nhấn đôi
- Đường kính đường thải: 53 (mm)
- Mặt nước đọng: 165 x 130 (mm)
- Bảo hành: 2 năm
Bộ sản phẩm bao gồm:
- Thân cầu: C320R
- Nắp đậy: TC385VS
- Thân sứ: CW320V
- Ống nối sàn: TCP300
- Nút trang trí: T53S
- Bộ cố định: SCS300
- Dây cấp: 260033-2
- Két nước: S320D
- Van dừng: AP004A
- Hướng dẫn sử dụng và lắp đặt: 1 quyển
Bản vẽ kỹ thuật

Bản vẽ 2D của bệ vệ sinh hai khối CS320DRT3 cao cấp, nắp rửa đóng êm
Chú ý vệ sinh sản phẩm bàn cầu hai khối TOTO CS320DRT3 kèm rửa đóng êm đa chức năng
- Không sử dụng dụng cụ có thể làm xước bề mặt như bàn chải kim loại, bàn chải chứa chất làm bóng, vải nilon, giấy ráp để lâu về mặt bồn cầu.
- Không dùng dung dịch có chứa hạt mài hoặc có tính kiềm, tính aixit mạnh dùng cho công nghiệp. Nếu không có thể gây xước, ăn mòn bề mặt.
- Không đổ chất tẩy rửa vào két nước vì có thể làm hỏng hóc linh kiện bên trong.