Thông tin bồn tiểu nam TOTO UT904R
- Bồn tiểu nam treo tường của hãng thiết bị vệ sinh TOTO
- Mã sản phẩm đầy đủ: UT904R
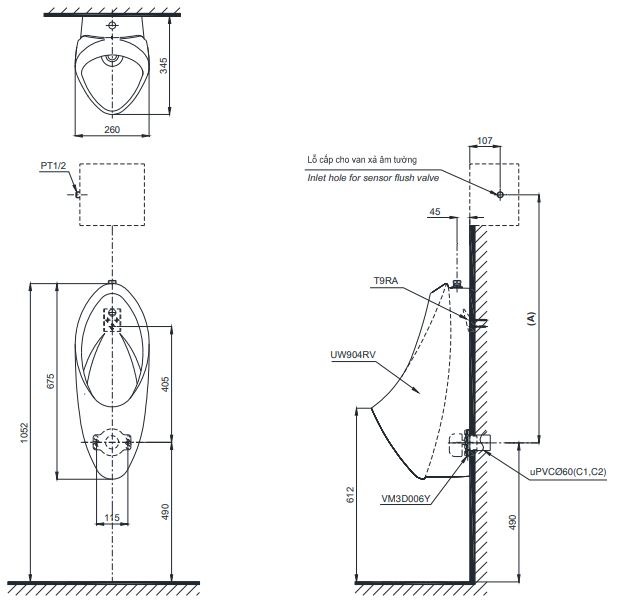
- Kích thước: 345D x 260W x 675H mm
- Áp lực nước: 0.07MPa ~ 0.75MPa
- Lượng nước xả: 0.5L
- Màu sắc : Màu trắng
- Xuất xứ: Việt Nam
- Phụ kiện đi kèm VM3D006Y,
- Đường cấp nước phía trên
Tính năng bệ tiểu nam UT 904R TOTO treo tường
- Thiết kế nhỏ gọn, tiện dụng với vách ngăn tạo không gian riêng tư
- Chế độ xả trải đều mạnh mẽ
Bản vẽ bồn tiểu TOTO UT904R
