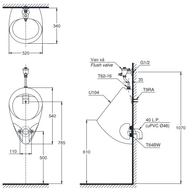
Thông tin cơ bản bồn tiểu U104W/F TOTO
- Bồn tiểu nam TOTO treo tường của hãng thiết bị vệ sinh TOTO
- Kích thước: L340 x W320 x H540 (mm)
- Lượng nước xả: 2L
- Áp lực nước: 0.07MPa ~ 0.75MPa
- Màu sắc: Màu trắng
- Xuất xứ: Indonesia
- Thiết kế nhỏ gọn, tiện dụng với vách ngăn tạo không gian riêng tư
- Chế độ xả trải đều mạnh mẽ
- Hệ thống thoát thải Siphon tích hợp
Chi tiết phụ kiện bồn tiểu nam TOTO U104W/F
- Thân sứ: U104
- Cút nối: T62-16
- Móc treo: T9RA
- Bích thoát thải: T64BW
Bản vẽ kỹ thuật
