Thông tin cơ bản bồn tiểu nam TOTO UT500T treo tường
- Bồn tiểu nam TOTO treo tường của hãng thiết bị vệ sinh TOTO
- Mã sản phẩm: UT500TXW
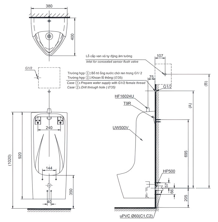
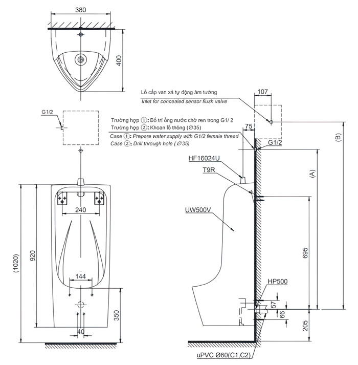
- Kích thước: 380x400x920 mm
- Lượng nước xả: 2L
- Áp lực nước: 0.07MPa ~ 0.75MPa
- Màu sắc: Màu trắng
Tính năng chậu tiểu nam UT500TXW TOTO
- Thiết kế nhỏ gọn, tiện dụng với vách ngăn tạo không gian riêng tư
- Chế độ xả trải đều mạnh mẽ
- Hệ thống thoát thải Siphon tích hợp
- Có thể lắp đặt với van xả cảm ứng (tùy chọn)
- Công nghệ CeFiONtect giúp bề mặt chậu rửa siêu nhẵn, hạn chế tối đa các vết bẩn, vi khuẩn
Bản vẽ kỹ thuật
