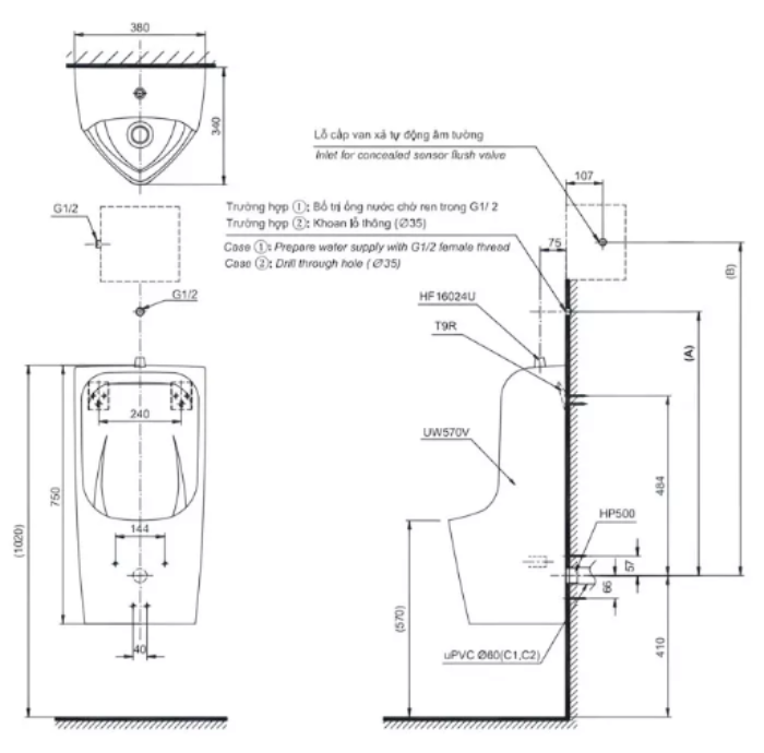
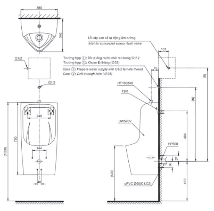
Thông tin bồn tiểu nam TOTO UT570T treo tường
- Bồn tiểu nam TOTO UT570T treo tường của hãng thiết bị vệ sinh TOTO
- Kích thước : 380 x 340 x 750 mm
- Áp lực nước: 0.07MPa ~ 0.75MPa
- Lượng nước xả: 2L
- Màu sắc: Màu trắng
- Xuất xứ: Việt Nam
Tính năng TOTO UT570T
- Thiết kế nhỏ gọn, tiện dụng với vách ngăn tạo không gian riêng tư
- Chế độ xả trải đều mạnh mẽ
- Có thể lắp đặt với van xả cảm ứng (tùy chọn)
- Công nghệ CeFiONtect giúp bề mặt chậu rửa siêu nhẵn, hạn chế tối đa các vết bẩn, vi khuẩn
Bản vẽ kỹ thuật
