-
- Tổng tiền thanh toán:
Danh mục hãng
Trụ sở chính:
Chi nhánh:
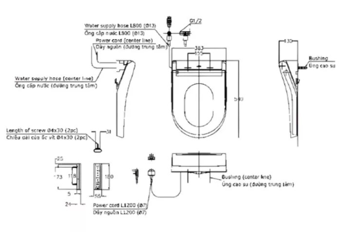
Thông tin kỹ thuật
Tính năng
Nắp rửa điện tử WASHLET S7 TCF4911EZ nổi bật với thiết kế giấu dây và thân dài. Sản phẩm phù hợp với bàn cầu thân dài, được tích hợp với nhiều tính năng hiện đại và thông minh với điều khiển từ xa.
Vật liệu của sản phẩm là nhựa cao cấp nên có thể sử dụng lâu bền theo thời gian. Nắp rửa điện tử WASHLET S7 TCF4911EZ còn có màu trắng phù hợp với tính thẩm mỹ của nhiều không gian nhà vệ sinh khác nhau.
Thông Tin Về Nắp Rửa Điện Tử WASHLET TCF4911EZ:
Nắp rửa điện tử WASHLET S7 TCF4911EZ có đầy đủ các tính năng:
2.1. Điều khiển từ xa
Chỉ với một chiếc điều khiển từ xa, người dùng hoàn toàn có thể sử dụng, điều chỉnh các tính năng: rửa tự động, massage, sấy khô,... một cách thuận lợi.
2.2. Ewater+ cho vòi rửa
Tính năng Ewater+ giúp vòi rửa tự động làm sạch bên trong và bên ngoài bằng nước điện phân, đảm bảo các điều kiện vệ sinh, sạch sẽ. Cơ chế hoạt động của Ewater+ là trước và sau mỗi lần sử dụng, vòi rửa sẽ tự động làm sạch, hạn chế sự hình thành của vi khuẩn.
2.3. Vòi rửa thông minh
Vòi rửa tự động thông minh với đa chức năng: Rửa sau, rửa trước cho nữ, rửa massage, theo xung nhịp,.. giúp làm sạch nhẹ nhàng, thoải mái và phù hợp với mỗi nhu cầu riêng của từng người dùng. Bạn có thể tùy chỉnh áp lực, nhiệt độ nước theo sở thích. Đây cũng là cấu tạo mấu chốt cho của nắp rửa điện tử TOTO WASHLET nói chung và mã S7 TCF4911EZ nói riêng.
2.4. Các tính năng khác
Nắp còn có tính năng sấy khô bằng khí ấm, chế độ khử mùi hiệu quả và tự động sưởi ấm bệ ngồi nhanh chóng ngay khi vừa ngồi xuống. Đảm bảo mang đến sự thoải mái và tiện ích nhất khi sử dụng sản phẩm.
