-
- Tổng tiền thanh toán:
Danh mục hãng
Trụ sở chính:
Chi nhánh:
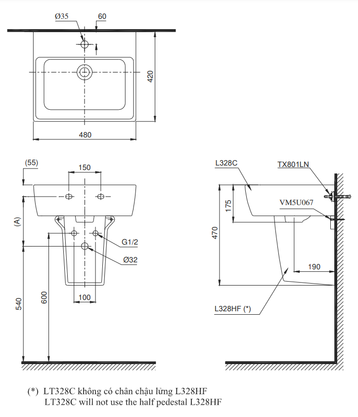
Thông tin chậu rửa mặt TOTO LHT328C treo tường
Mô tả sản phẩm
Sản phẩm chậu treo tường chân lửng LHT328C được TOTO Việt Nam ra mắt vào tháng 8/2023.
Sản phẩm có vành mỏng hơn tới 60% theo xu hướng thiết kế hiện đại và tối giản. Lòng chậu vát đứng tạo hiệu ứng chiều sâu, giảm bắn hoặc đọng nước. Kích thước tổng thể nhỏ nhưng thể tích lòng rộng rất thích hợp cho không gian nhà vệ sinh hạn chế.
Chậu LHT328C có khả năng ngăn chất thải bám vào bề mặt; chống bẩn chống dính hiệu quả. Đây là kết quả của việc tích hợp công nghệ men độc quyền CEFIONTECT - lớp men sứ mịn màng được tráng trên toàn bộ bề mặt chậu.

Sản phẩm có thể phù hợp với nhiều hình dáng vòi khác nhau, người dùng có thể tự do kết hợp. Thêm vào đó, chậu treo tường chân lửng LHT328C và bàn cầu hai khối CS326 là bộ đôi kết hợp hoàn hảo mà TOTO gợi ý đến bạn. Combo sản phẩm này không chỉ vừa túi tiền mà còn giúp người dùng tối ưu hóa trải nghiệm không gian phòng tắm tuyệt vời.