Thông tin chậu rửa mặt cao cấp âm bàn LT764XW
- Thiết kế gọn gàng, sang trọng và cao cấp
- Lau chùi dễ dàng, sạch hơn với men CEFIONTECT
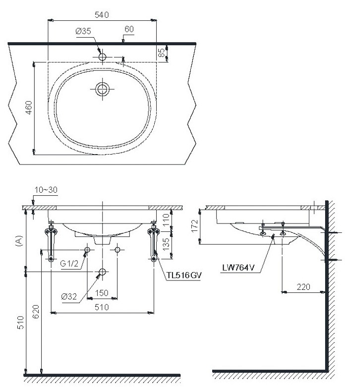
- Kích thước: L460 x W540 x H172 (mm)
- Màu sắc: Trắng
- Lưu ý: Bao gồm bộ giá đỡ TL516GV
Mô tả sản phẩm
Thông tin chậu rửa lavabo âm bàn cao cấp LT764XW
- Kích thước lỗ bắt vòi: Ø35 mm
- Có lỗ xả tràn
- Lỗ bắt vòi trên bàn
- Chậu âm bàn thiết kế đơn giản, tiện dụng
- Men CeFIONtect có màu sắc sang trọng

Chậu rửa lavabo âm bàn LT764XW
Các sản phẩm có thể phối hợp
- Vòi chậu: TS222A, TS240A, TS205A, TS260A, TS561A, DL345A, DGL301, DGL301R, TTLR302F-1R, TTLR301F-1R, DL342,...
- Ống thải: TVLF401, TVLF402 THX1A-8V2, TVLF405 TX709AV1N, T7PW1
Bản vẽ kỹ thuật chậu rửa lavabo âm bàn cao cấp LT764XW

Bản vẽ 2D của chậu rửa lavabo âm bàn cao cấp LT764XW