Kỹ thuật
- Hệ thống xả: Tornado
- Lượng xả: 4.5/3 L
- Tâm xả: 220 mm (Thoát ngang)
- Kiểu dáng: Thân chữ D, thân kín, giấu dây
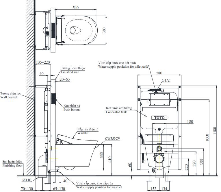
- Kích thước: 540D x 380W x 335H mm
- Áp lực nước: 0.05 ~ 0.75 Mpa
- Két nước: WH172AAT
- Nắp rửa điện tử WASHLET: TCF34370GAA
Tính năng
- Thiết kế giấu dây tinh tế, thẩm mỹ.
- Men sứ chống dính, chống bám bẩn CEFIONTECT
- Hệ thống xả xoáy Tornado siêu mạnh, siêu êm, tiết kiệm nước
- Thiết kế vành kín dễ dàng vệ sinh, luôn giữ sạch sẽ
- Làm sạch vòi rửa bằng nước điện phân khử trùng EWATER+ trước và sau khi sử dụng
- Phun sương lòng bàn cầu trước khi sử dụng
- Vòi rửa massage đa chức năng: rửa trước, rửa sau, rửa áp lực và rửa dịch chuyển êm ái, sạch sẽ.
- Tự vệ sinh vòi rửa trước và sau khi sử dụng.
Chi tiết phụ kiện bồn cầu đặt sàn gồm có
- Thân cầu: CW553C
- Nắp rửa điện tử: TCF33370GAA
- Két nước âm tường: WH172AT
- Nắp đậy nút nhấn xả: MB174P#SS
Bản vẽ kích thước xí bệt treo tường Toto CW553C
