-
- Tổng tiền thanh toán:
Danh mục hãng
Trụ sở chính:
Chi nhánh:
Kỹ thuật
Tính năng
Mô tả sản phẩm
Thiết kế của Bàn cầu một khối MS625 kết hợp nắp rửa điện tử WASHLET dòng C5 TCF24460AAA tạo nên diện mạo hiện đại, mới mẻ, mang lại trải nghiệm êm ái chưa từng có.
Ngoài ra, đây là mẫu bàn cầu giấu dây nên đảm bảo tính thẩm mỹ, dễ dàng để lắp đặt sử dụng, không gây vướng víu hay chiếm diện tích không gian nhà vệ sinh.
Bàn cầu một khối MS625 kết hợp nắp rửa điện tử WASHLET dòng C5 TCF24460AAA là mẫu sản phẩm mới nhất từ TOTO được tích hợp những tính năng công nghệ hiện đại nổi bật như:
2.1. Men sứ chống bám bẩn CEFIONTECT
Bàn cầu một khối MS625 kết hợp nắp rửa điện tử WASHLET dòng C5 TCF24460AAA không chỉ được bảo đảm về độ bền lâu mà còn được đánh giá cao về tính thẩm mỹ nhờ lớp men chống bám bẩn CEFIONTECT. Với lớp men sứ này, bàn cầu sẽ dễ dàng vệ sinh hơn mà không cần sử dụng thêm chất tẩy rửa.
2.2. Hệ thống xả xoáy TORNADO siêu mạnh
Khác với những hệ thống xả bình thường ở những loại bàn cầu khác, Bàn cầu một khối MS625 đã được TOTO tích hợp tính năng xả xoáy TORNADO riêng biệt. Nhờ tính năng này, mọi chất bẩn được làm sạch ngay sau một lần xả, tối ưu hiệu quả tiết kiệm nước.
2.3. Tích hợp tính năng hiện đại của nắp rửa điện tử WASHLET dòng C5 TCF24460AAA
Sự kết hợp giữa bàn cầu một khối MS625 và thiết kế nắp rửa điện tử thông minh WASHLET dòng C5 đã tích hợp thêm cho sản phẩm một số chức năng nổi bật như: vòi rửa với đa chế độ êm ái, tự động phun sương, tự làm sạch vòi từ trong ra ngoài với EWATER+, sấy khô, khử mùi…
Thông số kỹ thuật cụ thể:
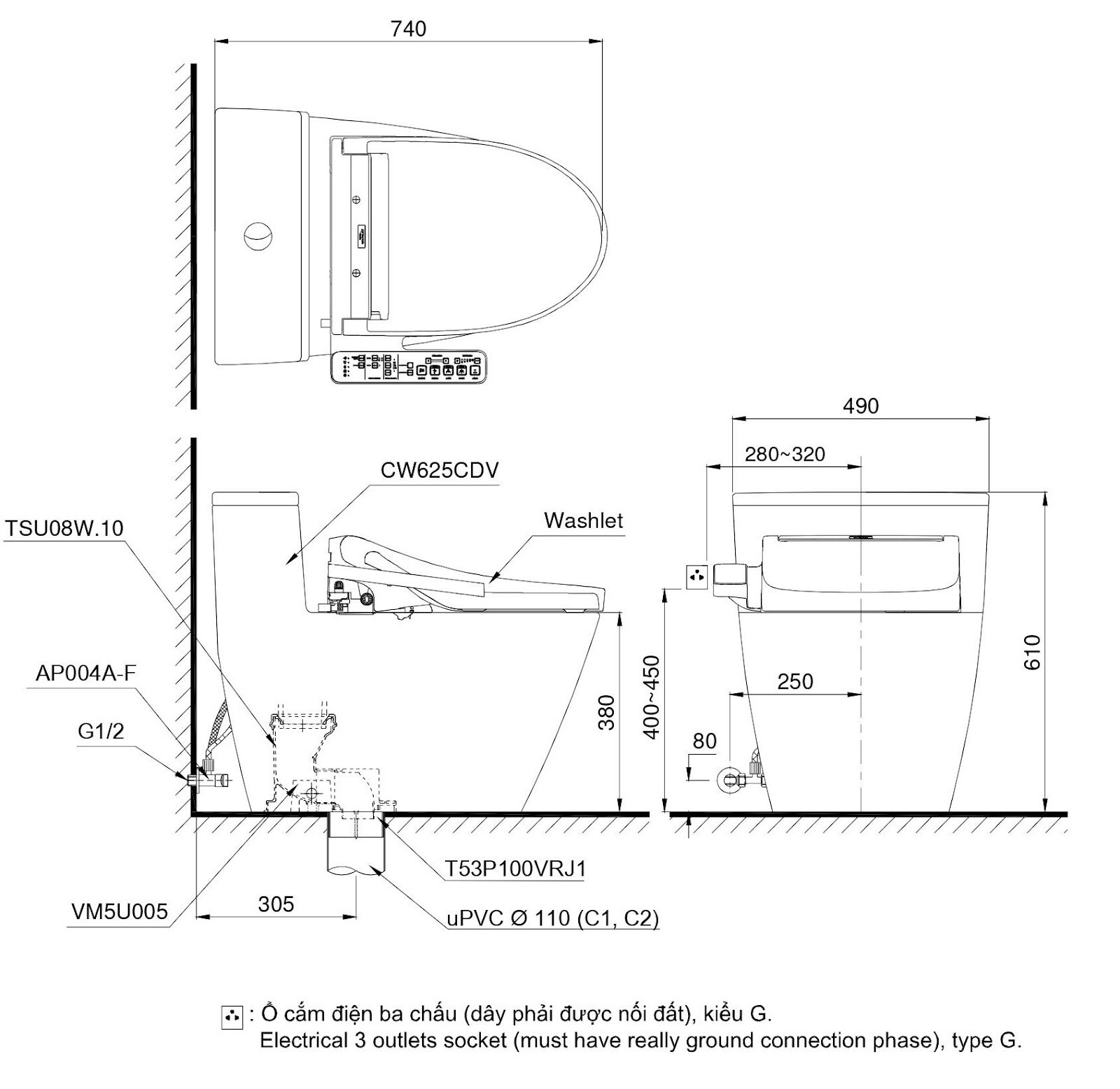
Bản vẽ chi tiết:

Bản vẽ bàn cầu một khối MS625 kết hợp nắp rửa điện tử WASHLET dòng C5 TCF24460AAA