Kỹ thuật
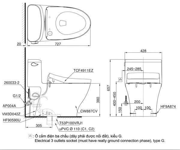
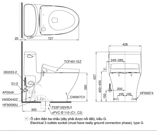
- Kích thước: 727D x 428W x 657H mm
- Màu sắc: Trắng
- Hệ thống xả: Xả xoáy Tornado
- Lượng nước xả: 4.8L
- Thiết kế: Thân dài, thân kín
- Tâm xả: 305 mm
- Áp lực nước: 0.05 ~ 0.70 MPa
- Nguồn điện: 220V, 50/60Hz
- Lưu ý: Bao gồm bích nối sàn, van dừng
Tính năng
- Thiết kế giấu dây hiện đại, tăng tính thẩm mỹ
- Men sứ chống dính, chống bám bẩn CEFIONTECT
- Hệ thống xả xoáy Tornado siêu mạnh, siêu êm, tiết kiệm nước
- Nắp đóng/ mở tự động
- Công nghệ nước điện phân khử khuẩn Ewater+ (Phun tráng lòng bàn cầu và vệ sinh vòi rửa)
- Vòi rửa massage đa chức năng, rửa sạch, êm ái
- Chế độ đưa bọt khí vào giọt nước
- Tự vệ sinh vòi rửa trước và sau khi sử dụng
- Sấy khô, khử mùi, sưởi ấm nắp ngồi
Thông Tin Cơ Bản Về Bàn Cầu Một Khối MS887CRW12 (Nắp rửa điện tử WASHLET dòng S7)
- Chất liệu: Sứ vệ sinh
- Kiểu xả: Tay gạt
- Mặt nước đọng: 160 x 230 mm
- Kích thước đường thải: Ø47 mm
- Xuất xứ: Việt Nam
- Tình trạng: Còn hàng
- Bảo hành: 2 năm
Tiết kiệm nước với chỉ 4.8L cho một lần xả
Nắp rửa điện tử thông minh đi kèm nhiều chức năng

Bàn cầu một khối MS887CRW12 nắp rửa điện tử WASHLET dòng S7
Bộ Sản Phẩm Bao Gồm
- Thân sứ: CW887CV
- Bộ cố định: HF90590U
- Van dừng: AP004A
- Mũ chụp: HF9A874
- Dây cấp: 260033-2
- Đệm thoát sàn: T53P100VRJ1
- Ống nối sàn: VM3D042Z
- Bệ ngồi & nắp đậy: TCF4911EZ
Bản Vẽ Kỹ Thuật
