Kỹ thuật
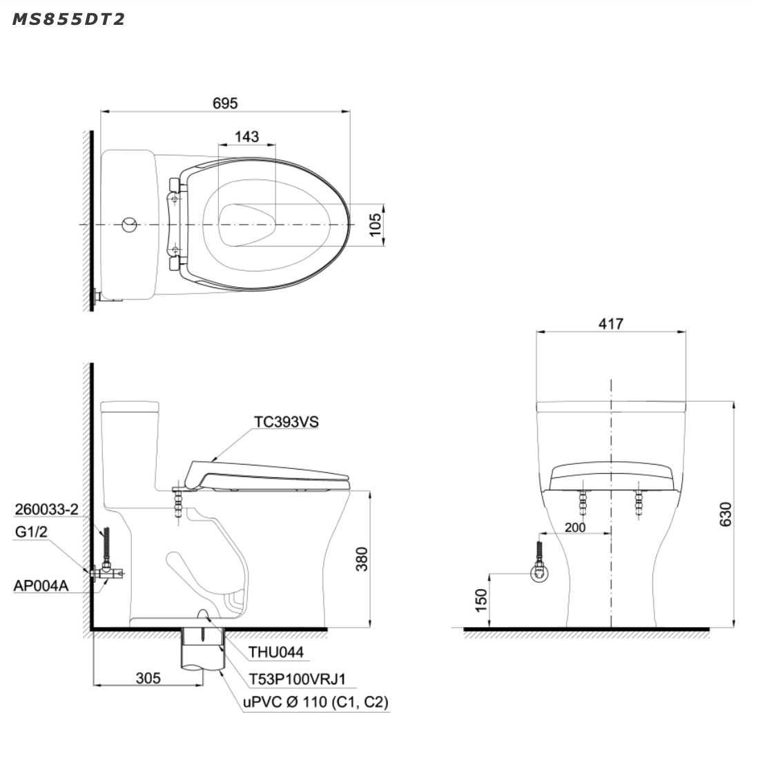
- Kích thước: 695D x 417W x 630H mm
- Màu sắc: Trắng
- Hệ thống xả: Tornado
- Lượng nước xả: 4.8L/3L
- Thiết kế: Thân dài, thân hở
- Tâm xả: 305 mm
- Áp lực nước: 0.05 ~ 0.70 MPa
- Lưu ý: Bao gồm bích nối sàn, van dừng
Tính năng
- Men sứ chống dính, chống bám bẩn CEFIONTECT
- Hệ thống xả Tornado siêu mạnh, siêu êm, tiết kiệm nước
Mô tả sản phẩm
Giới thiệu bồn cầu một khối MS855DT2 (Nắp đóng êm TC393VS)
Bồn cầu một khối MS855DT2 (Nắp đóng êm TC393VS) thuộc dòng bồn cầu 1 khối thân dài.
Sản phẩm được trang bị nhiều công nghệ và tính năng nổi bật như công nghệ xả Tornado với hiệu suất xả tốt hơn, bên ngoài có lớp men chống bám bẩn giúp hạn chế tối đa sự sinh sôi của vi khuẩn.
Thiết kế ưa nhìn, sang trọng không chỉ cho trải nghiệm sử dụng tuyệt vời mà còn làm tăng vẻ đẹp phòng tắm.

Bồn cầu một khối MS855DT2 nắp đóng êm TC393VS
Thông tin chi tiết bồn cầu một khối MS855DT2 (Nắp đóng êm TC393VS)
- Vật liệu: Sứ vệ sinh
- Loại xả: Nhấn đôi
- Mặt nước đọng: 105 x 143 mm
- Tình trạng: Còn hàng
- Xuất xứ: Việt Nam
- Bảo hành: 2 năm
Bộ sản phẩm bao gồm
- Thân sứ: CW855DV
- Bích nối sàn: T53P100VRJ1
- Có ống nối sàn
- Van dừng & dây cấp: AP004A, 260033-2
- Mũ chụp: THU044
- Bệ ngồi & nắp đậy: TC393VS
Bản vẽ kỹ thuật

Bản vẽ 2D bồn cầu một khối MS855DT2 nắp đóng êm TC393VS
Lưu ý khi sử dụng
- Thực hiện lắp đặt theo hướng dẫn lắp đặt mà TOTO đính kèm
- Tự ý chỉnh sửa, thêm bớt tính năng có thể làm bàn cầu hỏng hóc và không nhận được hỗ trợ của TOTO Việt Nam
- Vệ sinh thân bàn cầu cũng như két nước thường xuyên đế sản phẩm bền lâu, giữ màu tốt hơn